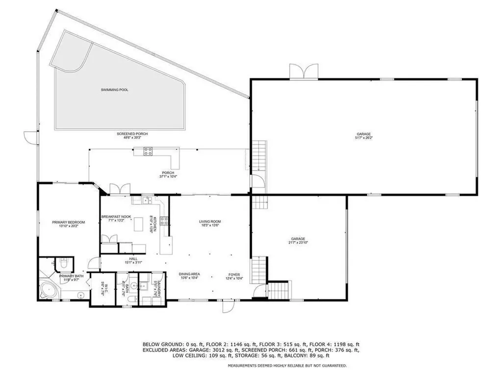
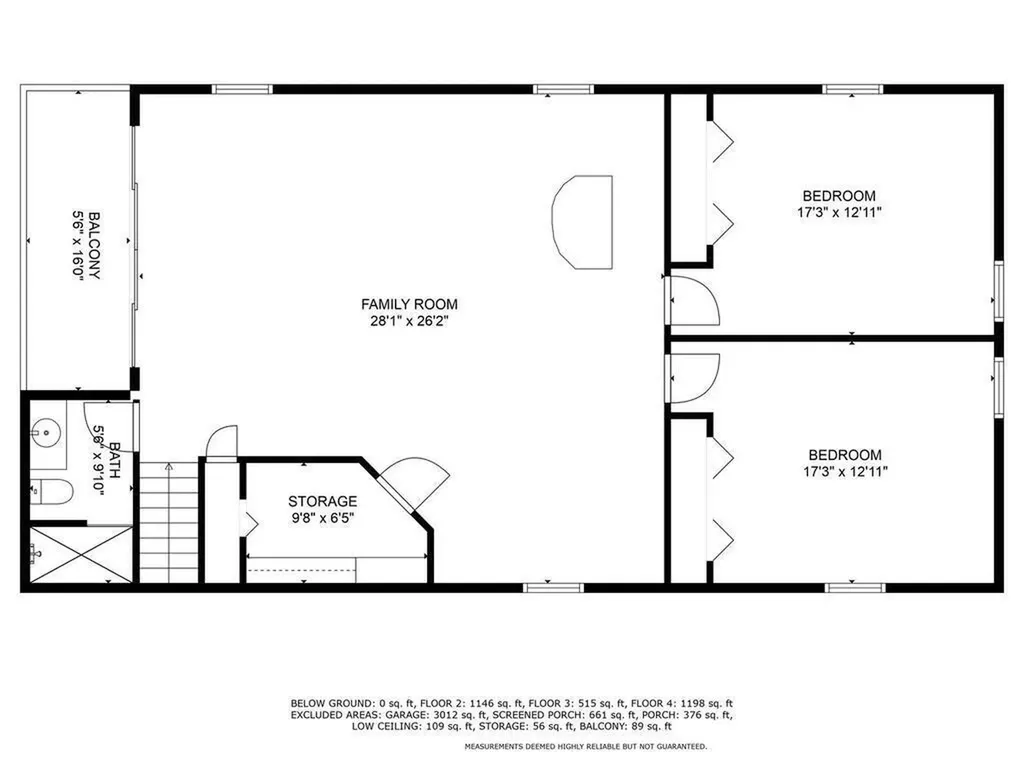
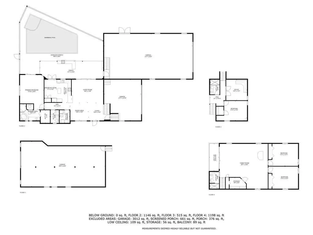
Very Unique Marco Island waterfront Home features a 50'x26' climate controlled showroom for RV or collections. enclosed parking for over 12 cars. Southern exposure view down a long canal. Over 7,000 sq. ft. total area including a climate controlled basement with a additional overhead door access. Nice separation of living spaces with 4 bedrooms and a den. Main house is 12 foot elevation. Enjoy the pool and spa with outdoor kitchen and custom wood ceiling. Brazilian Cherry floors. Oversized corner site with expansive paver driveway. House generator is ready to supply power. New tile roof in 2018. Additional details..... o RV Garage - installed Ceramic tiles on floor, walls newly painted o House Garage - ceramic tiles on floor, walls newly painted o House Garage - replaced carpet on steps with polished wood o Brand new garage doors on RV garage, house garage and lower level o Ceramic tile on upper balcony floor o Polished wood ceiling on upper balcony o Polished wood ceiling at front door entrance (outside) to match lanai ceiling which we also had re-finished o Brand new, raised, upgraded pool cage (2018) o All new AC units o New pool heater & pump o Entire house exterior was re-painted in 2018 " RV Garage - installed Ceramic tiles on floor, walls newly painted " House Garage - ceramic tiles on floor, walls newly painted " House Garage - replaced carpet on steps with polished wood " Brand new garage doors on RV garage, house garage and lower level " Ceramic tile on upper balcony floor " Polished wood ceiling on upper balcony " Polished wood ceiling at front door entrance (outside) to match lanai ceiling which we also had re-finished " Brand new, raised, upgraded pool cage (2018) " All new AC units " New pool heater & pump " Entire house exterior was re-painted in 2018

Listing Tools

Property Details of 1601 Rainbow Court

Property Details

Interior Features

Utilities and Appliances

Community

Other Details

Map Location

Listed by Gary Weinberg of Premiere Plus Realty Company

 "Based on information submitted to Marco Island as of March 13, 2026 6:58 AM EDT. All data is deemed reliable but is not guaranteed accurate by the MLS. All information should be independently reviewed and verified for accuracy. IDX information is provided exclusively for consumers’ personal, noncommercial use and may not be used for any purpose other than to identify prospective properties consumers may be interested in purchasing."

Hi there! How can we help you?

Contact us using the form below or give us a call.

Send Us A Message:

By providing Michelle Thomas Team your contact information, you acknowledge and agree to our Privacy Policy and consent to receiving marketing communications, including through calls, texts, and emails. This consent isn’t necessary for purchasing any products or services and you may opt out at any time.

Do not fill in this field:

This site is protected by reCAPTCHA and the Google Privacy Policy and Terms of Service apply.